
























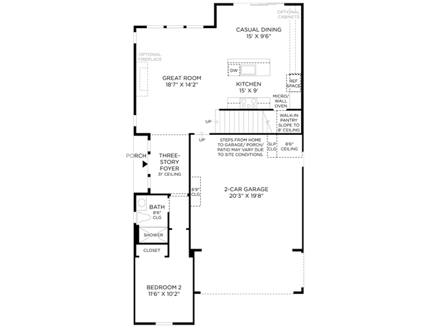
From the Lapis' alluring side porch entry, you'll find a stunning three-story foyer that flows right into the spacious great room and casual dining area with desirable rear yard access. These spaces offer easy access to the open-concept kitchen, making it ideal for year-round entertaining. The well-designed kitchen is complete with a large center island with breakfast bar, plenty of counter and cabinet space, and sizable walk-in pantry. The wonderful primary bedroom suite is highlighted by a relaxing sitting area, immense walk-in closet, and deluxe primary bath with dual vanities, large luxe shower with seat and drying area, and private water closet. Secondary bedrooms feature roomy closets and a shared hall bath with dual-sink vanity. Secluded on the third floor is a spacious loft with a powder room and access to a serene covered deck, offering endless o...