





















































































Get additional information including price lists and floor plans.
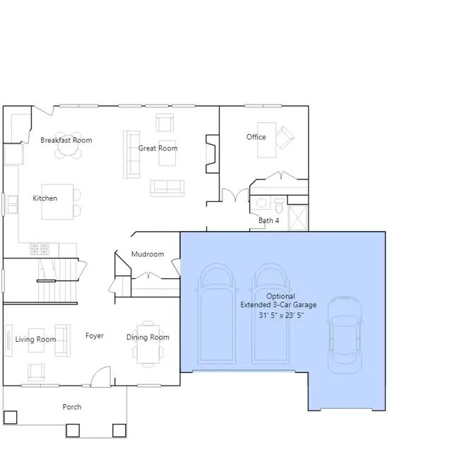
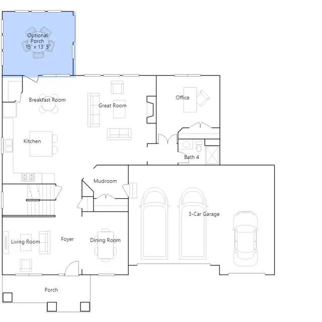
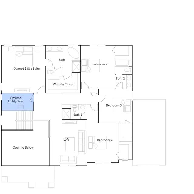
This new two-story home provides space for the whole family to thrive. The first floor features formal living and dining rooms located off the foyer and an open-plan Great Room, kitchen with breakfast room and study at the back of the home. Situated on the second floor are a versatile loft and four bedrooms, including the owners suite.
Stay informed with Livabl updates on new community details and available inventory.