





























































Get additional information including price lists and floor plans.
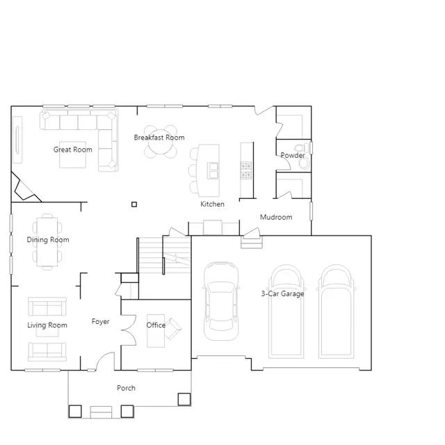
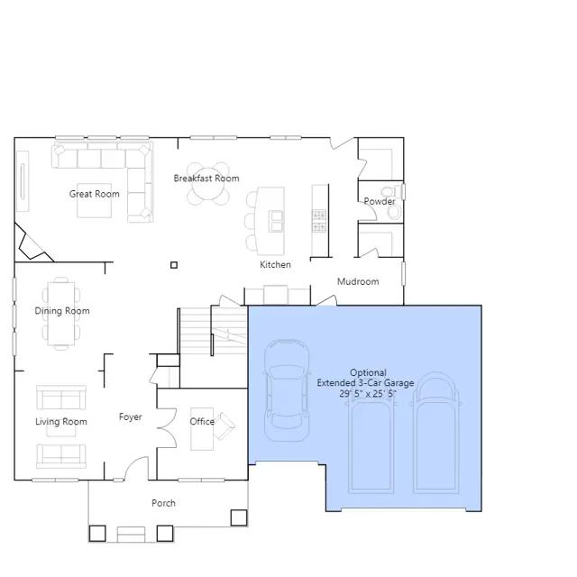
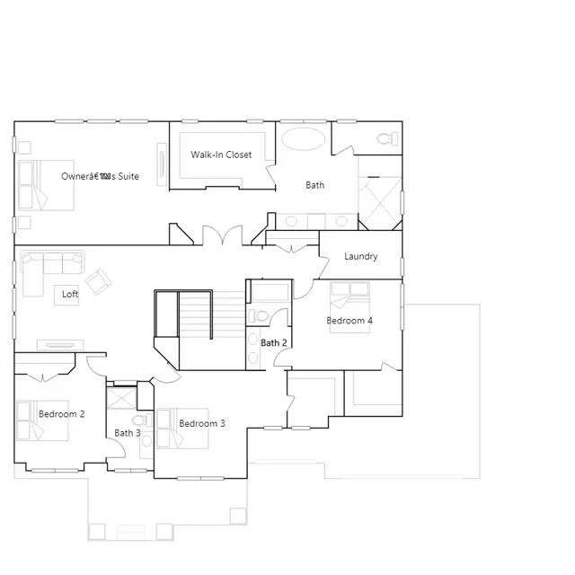
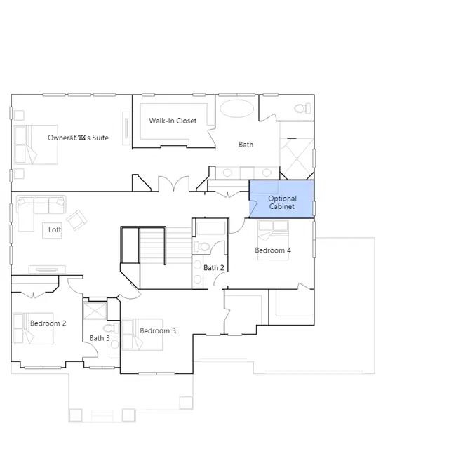
This new two-story homes contemporary design features a formal living room and formal dining room that are ideal for entertaining guests, while an open-plan Great Room is perfect for casual moments with the family and a study could serve as a home office. Located on the second floor are four bedrooms including the owners suite, plus a loft for additional space.
Stay informed with Livabl updates on new community details and available inventory.