
























































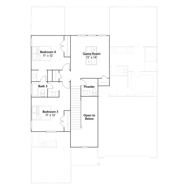
The first level of this two-story home is host to a generous open floorplan shared between the kitchen, dining room and family room. The covered patio is great for entertaining guests. Also on the first floor is a secondary bedroom and office off the entry, as well as the owners suite at the back of the home. Two more secondary bedrooms are situated upstairs, surrounding a versatile game room.
Stay informed with Livabl updates on new community details and available inventory.