































































Get additional information including price lists and floor plans.
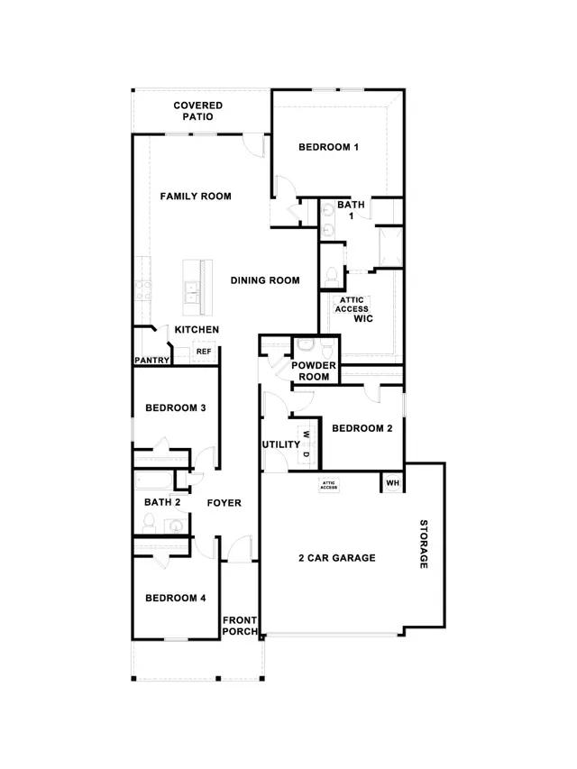
Check out the Harris floorplan, our largest one-story home available at Paramount in Kyle, Texas. Perfect for roommates or larger families, this 4 bedroom, 2.5 bathroom, 2 car garage home offers 1,822 square feet of comfortable living space. Our homes in Paramount feature our modern farmhouse exterior and the Harris plan is available in 2 exterior options. At the front of the home, off the foyer, you have two secondary bedrooms and a full bathroom, which includes a shower/tub combination. Moving through the foyer and down a small hall, you will find the half bathroom, utility room and another secondary bedroom. All secondary bedrooms feature a closet with shelving. Whether you use these rooms as an office, childs room or guest room, there is plenty of space for work, sleep, and play. Making your way through the house, youll walk into the heart of the home, the...
Stay informed with Livabl updates on new community details and available inventory.