

















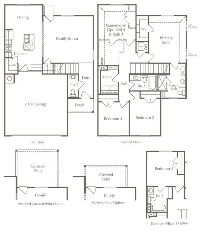
Featuring 3 bedrooms and 2.5 baths, Carson delivers adaptable living with options for cozy media or study zones. The thoughtful layout connects kitchen, dining, and living seamlesslygreat for everyday routines or entertainingwhile maintaining quiet private retreats. Ideal for buyers wanting balance between comfort and clever design. Carson fits Crosswinds active, family-friendly vibe, offering a modern home just steps from neighborhood trails, parks, and gathering spaces.
Stay informed with Livabl updates on new community details and available inventory.