



































































Get additional information including price lists and floor plans.
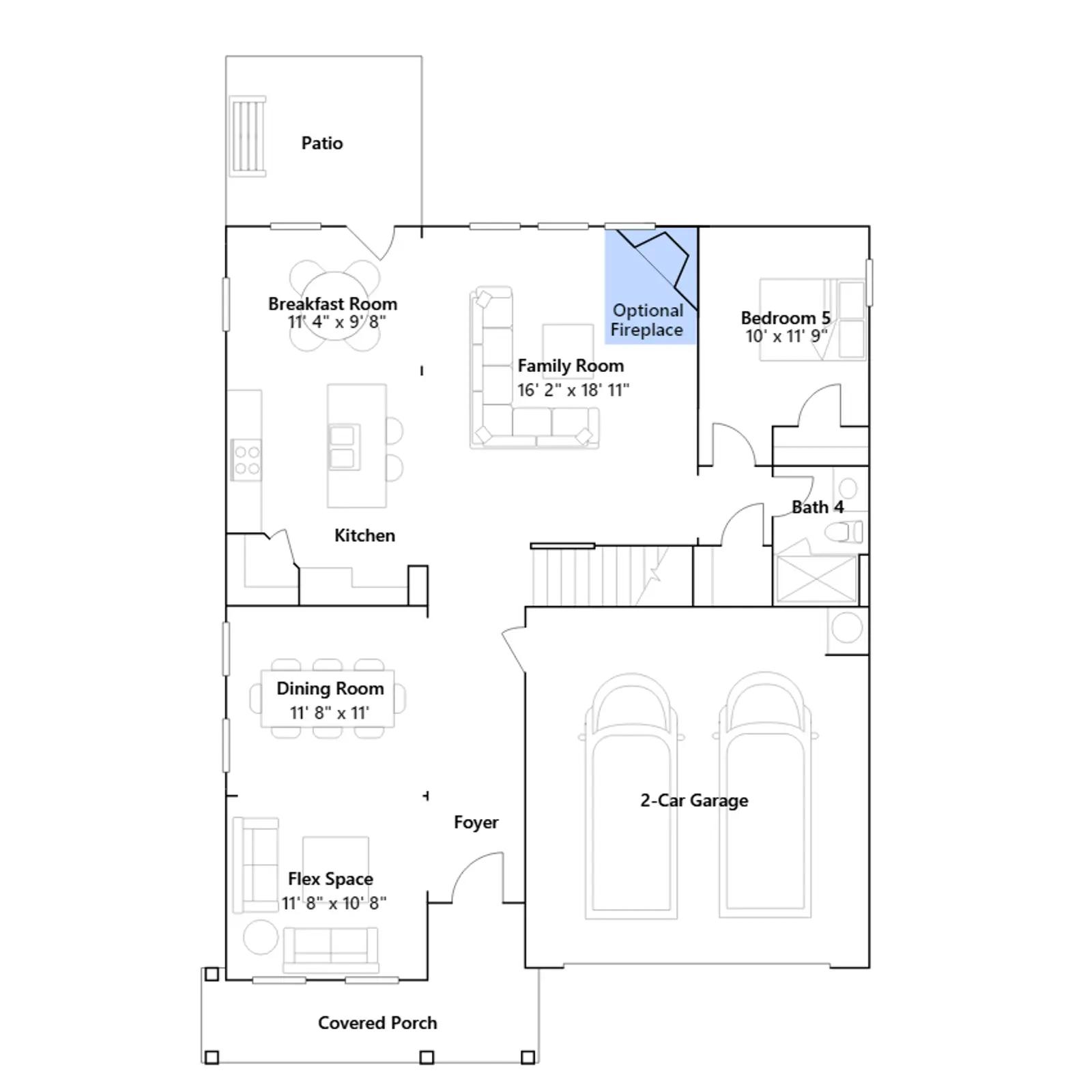
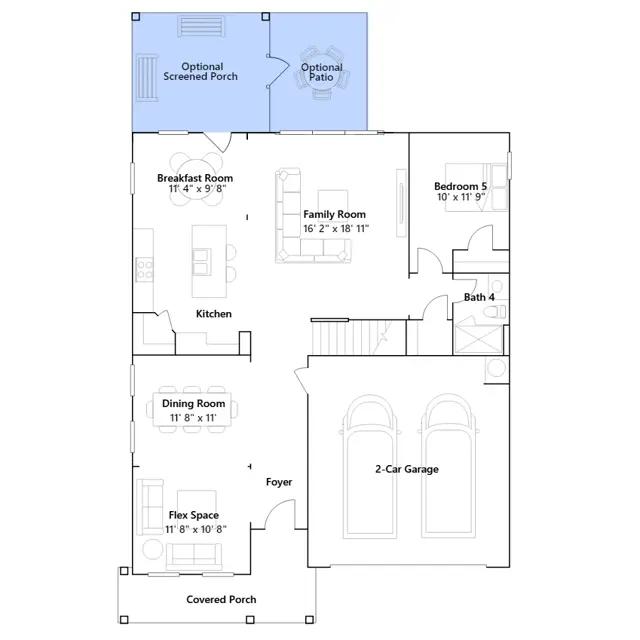
Casual elegance is the order of the day at this new two-story home. The first floor features an open-plan main living area, a formal dining room, a secluded bedroom for guests and a patio for outdoor living. Upstairs are the owners suite, three secondary bedrooms and a versatile game room. Finishing the layout is a two-car garage to offer ample storage space.
Stay informed with Livabl updates on new community details and available inventory.