



































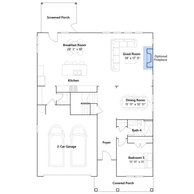
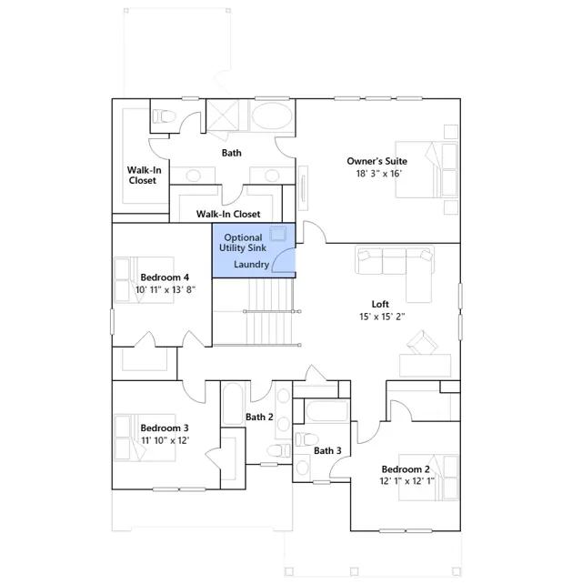
This new two-story home design combines comfort and style. The first floor showcases an open-plan layout among a Great Room for shared moments, a formal dining room for memorable meals and a kitchen for inspired cooks. A front and rear porch enhances outdoor enjoyment, while a bedroom off the foyer is well-suited to hosting guests. Upstairs is a central loft surrounded by four bedrooms including a spacious owners suite with a luxe bathroom and large walk-in closet are restful retreats.
Stay informed with Livabl updates on new community details and available inventory.