




















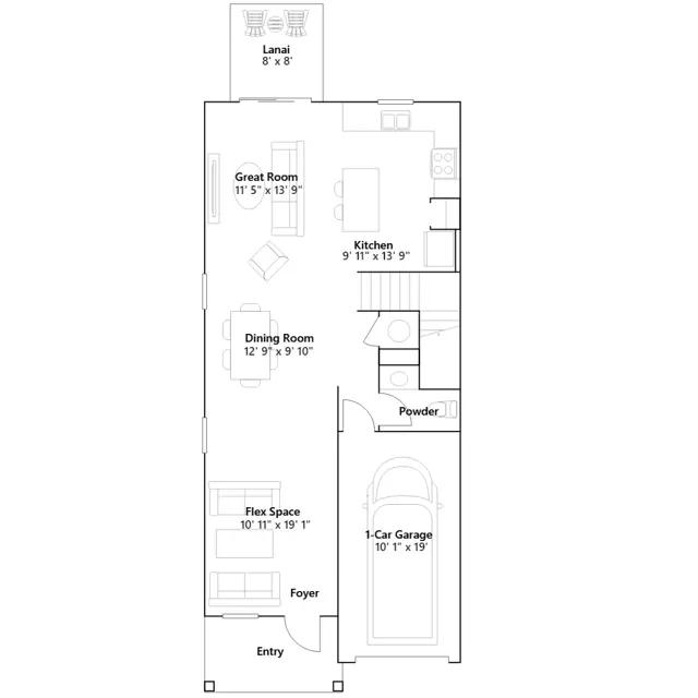
The first floor of this two-story townhome showcases a versatile flex space well-suited to hosting guests. Down the hall is a breezy and convenient shared layout between the dining room, kitchen and Great Room, along with an attached lanai. Upstairs, a multipurpose loft divides the tranquil owners suite with a full-sized bathroom from the remaining bedrooms.
Stay informed with Livabl updates on new community details and available inventory.