hero-image-0

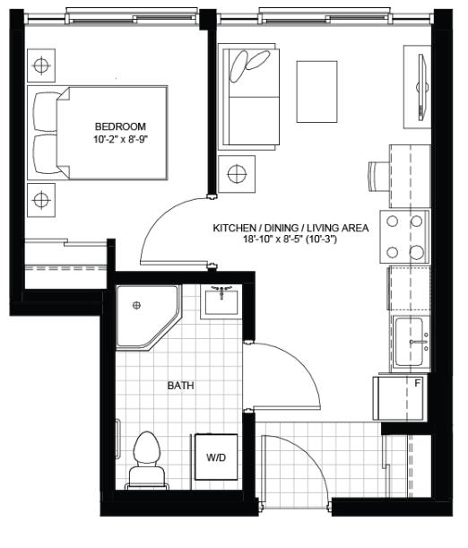
1B16 Plan

Sage Kingston
Sold
Sold
1
1
From 438
unit-banner-imageunit-banner-imageunit-banner-image
1B16 Plan details
1B16 Plan is now sold.
Check out available nearby plans below.