



















Images coming soon
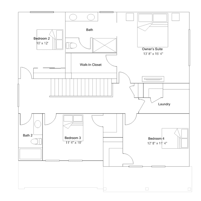
This two-story home features a flex room off the foyer, ideal for a formal dining room or an entertainment area for guests. An open-concept layout is hosted among the Great Room, kitchen and nook to promote simplified everyday living. On the second floor is the owners suite with a spa-inspired bathroom and all three secondary bedrooms.