












Images coming soon
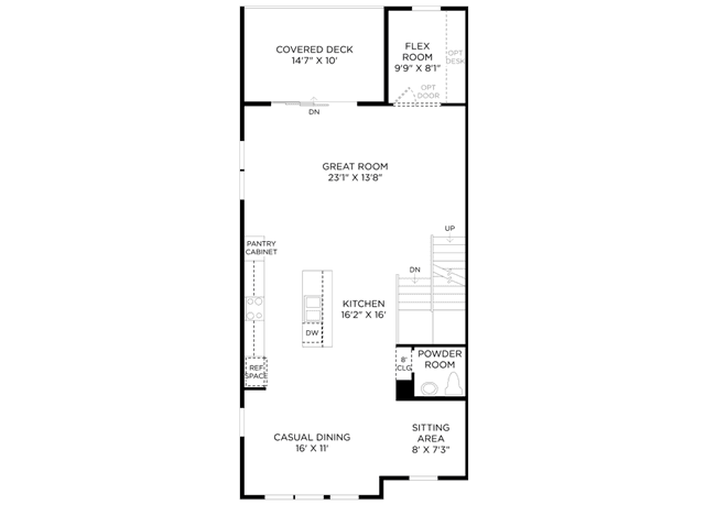
A cozy foyer and bright stairway invite you home to the Barry Elite, flowing up to the spacious main living level where a stunning great room, covered deck, and large flex room are revealed. The well-appointed kitchen overlooks a spacious casual dining area with adjacent sitting area and is further enhanced by a large center island with breakfast bar, ample counter and cabinet space, and a roomy pantry cabinet. Complementing the primary bedroom suite are an expansive walk-in closet and elegant primary bath with dual-sink vanity, large luxe shower with seat, and private water closet. Secondary bedrooms feature sizable closets and a shared hall bath with dual-sink vanity. Additional highlights include a convenient powder room on the living level, centrally located laundry on the bedroom level, and additional storage throughout.