hero-image-0

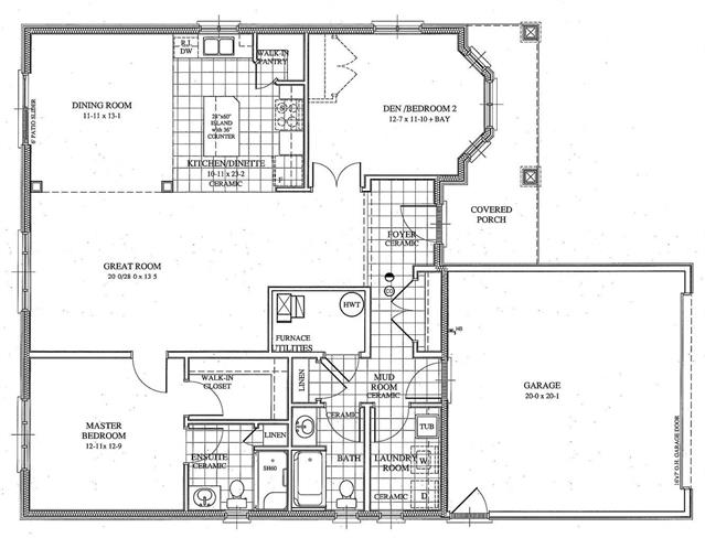
Highlander Lot 71

Inverlyn Lake Estates
Sold
Sold
2
2
1,507
Highlander Lot 71 details
unit-banner-image
unit-banner-image
unit-banner-image
Highlander Lot 71 is now sold.
Check out available communities below.