

































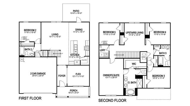
Welcome to the Carol Plan, a customer favorite of our new home communities in central, Alabama. Just over 2,500 square feet, this beautiful two- story home offers 5-bedrooms with 3-bathrooms, and a 2-car garage with a gorgeous open floor layout. The gourmet kitchen has an oversized island for extra seating and a large pantry, and it opens to the dining area and a spacious living room. A bedroom with a full bathroom completes the main level. Bedroom One is on the second level and offers a luxurious bath with a soaking garden tub and separate shower, private bathroom, double vanities with marble counters and a large walk-in closet. There are 3 additional bedrooms, a full bathroom, a walk-in laundry room, and a loft-style living room on the second level. Quality materials and workmanship throughout, with superior attention to detail, plus a one-year builder's ...
Stay informed with Livabl updates on new community details and available inventory.