







































































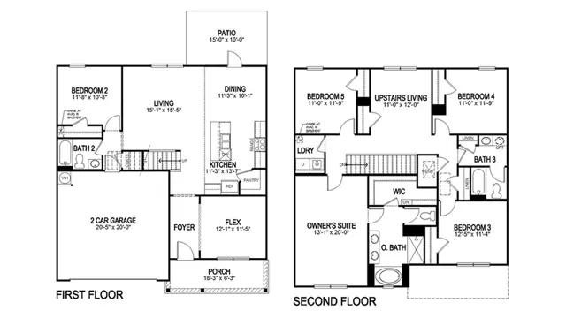
The Carol presents a two-story layout comprising 5 bedrooms and 3 bathrooms within 2,511 square feet. The first floor includes a flex room next to the foyer, suitable for a formal dining room or a home office. The gourmet kitchen boasts an oversized island for additional seating, a spacious pantry, and connects to the dining area and a generous living room. A bedroom with a full bathroom rounds off the main level. On the upper floor, the primary bedroom features an opulent bath with a soaking garden tub and separate shower, a private bathroom, double vanities with marble counters, and a sizable walk-in closet. Additionally, there are 3 more bedrooms, a full bathroom, a walk-in laundry room, and a loft-style living room on the second level. Quality materials and workmanship throughout, with superior attention to detail, plus a one-year builders warranty. Your new ...
Stay informed with Livabl updates on new community details and available inventory.