






















































































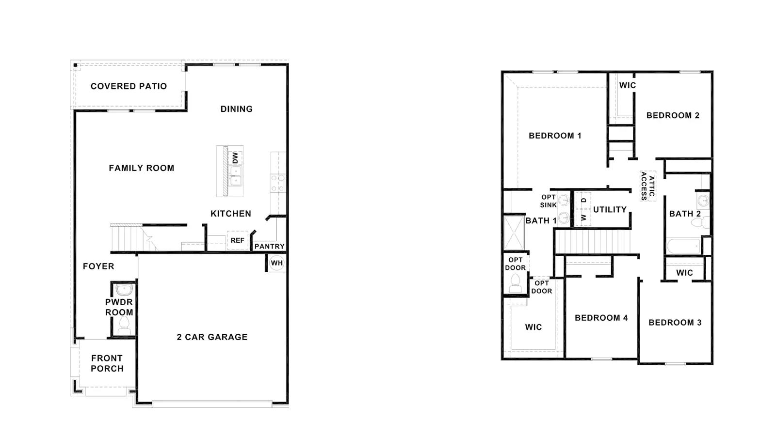
Discover The Grace floor plan in Turnbo Ranch, Killeen, TXa beautiful balance of timeless charm and modern design. Offering approximately 1,952 sq. ft., this thoughtfully crafted two-story home with 3 bedrooms, 2.5 bath, and a spacious two-car garage. Step through the inviting arched patio into a grand foyer that opens to an expansive living room. The open-concept layout flows seamlessly into the dining area and chef-inspired kitchenperfect for daily living and entertaining. The kitchen showcases granite countertops, stainless steel appliances, a large island overlooking the living space, and a deep single-basin sink for added convenience. Upstairs, the design separates living and private spaces for comfort and privacy. The main suite is a peaceful retreat, featuring a walk-in shower, separate water closet, ample built-in storage, and a generous walk-in closet....
Stay informed with Livabl updates on new community details and available inventory.