hero-image-0

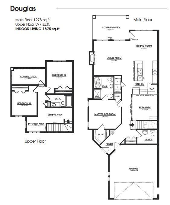
Douglas Plan

By

Rohit Homes

   |   

Cypress Point

Cypress Point
Sold
Sold
1
1
1
1
From 1,875
unit-banner-imageunit-banner-imageunit-banner-image
Douglas Plan details
Douglas Plan is now sold.