hero-image-0
hero-image-1

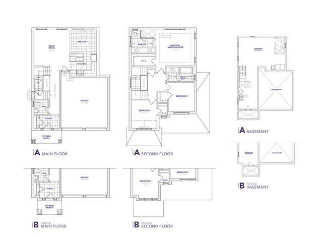
Silver Lake Elevation A Plan

Sugarwood - Phase 3
Not Available
Not available
Pricing unavailable
2
3
2 - 3
1
From 1,715
unit-banner-imageunit-banner-imageunit-banner-image
Silver Lake Elevation A Plan details

Contact sales center

Get additional information including price lists and floor plans.

Interested? Receive updates

Stay informed with Livabl updates on new community details and available inventory.