hero-image-0
hero-image-1
hero-image-2
hero-image-3

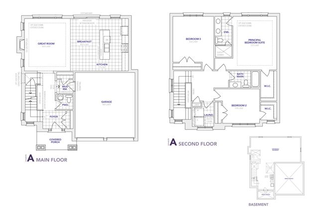
WHITE LAKE Plan

By

Kingsmen Group Inc.

   |   

Sugarwood Phase 2

Sugarwood Phase 2
Sold
Sold
3
2
1
From 2,030
unit-banner-imageunit-banner-imageunit-banner-image
WHITE LAKE Plan details
WHITE LAKE Plan is now sold.
Check out available nearby plans below.