hero-image-0
hero-image-1
hero-image-2
hero-image-3

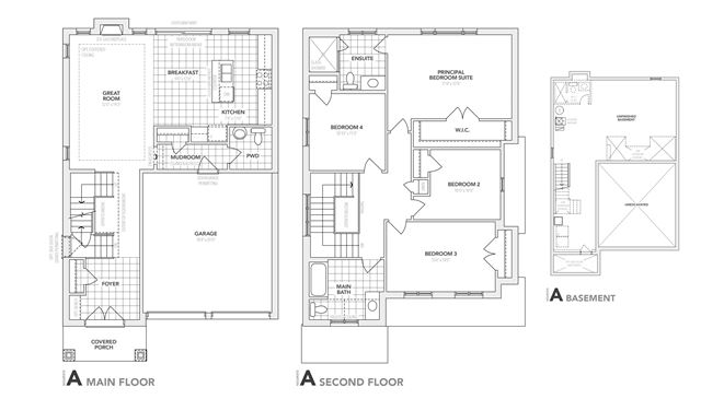
BUCKHORN LAKE Plan

By

Kingsmen Group Inc.

   |   

Sugarwood Phase 2

Sugarwood Phase 2
Sold
Sold
4
2
1
From 2,075
unit-banner-imageunit-banner-imageunit-banner-image
BUCKHORN LAKE Plan details
BUCKHORN LAKE Plan is now sold.
Check out available nearby plans below.