













































Get additional information including price lists and floor plans.



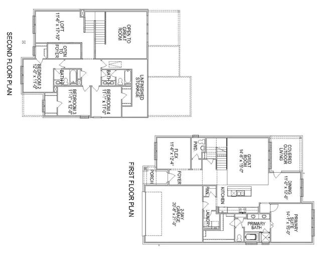
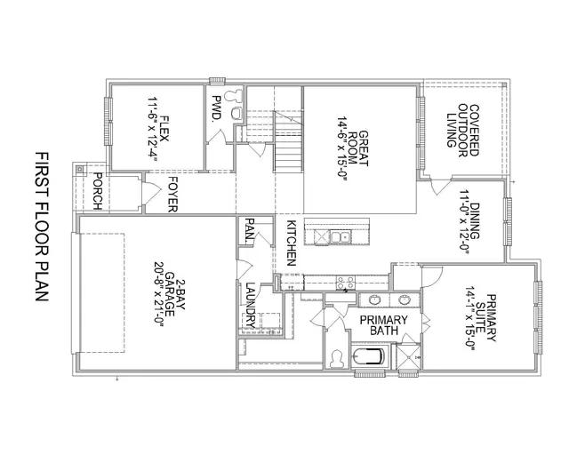
Beautiful two-story plan has 4 bedrooms, 3.5 baths and a 2-car garage. The open concept plan offers a 1st floor flex room, great room with a 2-story ceiling, casual dining area off kitchen, upstairs loft space, a large walk-in closet at primary bath, a generous unfinished storage area on the 2nd floor and covered outdoor living space. Personalize your plan by selecting from the options such as: glass sliders at great room, bed 5/bath 4 or home office from flex room, electric fireplace in great room, 36? cooktop in kitchen, luxury primary shower, 5 ft. garage extension, additional 1-car garage.
Stay informed with Livabl updates on new community details and available inventory.