





























































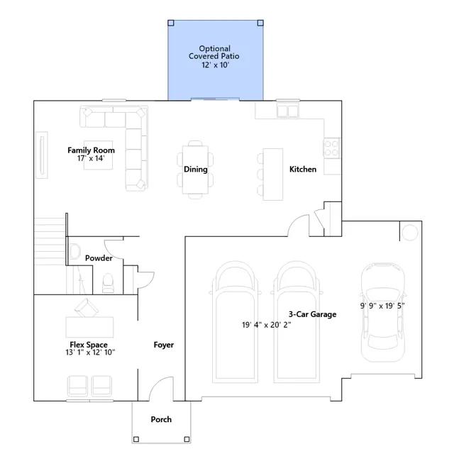
The first floor of this two-story home shares an open layout between the kitchen, dining area and family room for easy entertaining, along withaflexspace that can function as a home office, depending on the homeowners needs. Upstairs are three secondary bedrooms surrounding a versatile loft, one with a private bathroom, as well as the luxe owner's suite with an en-suite bathroom and spacious walk-in closet.
Stay informed with Livabl updates on new community details and available inventory.