



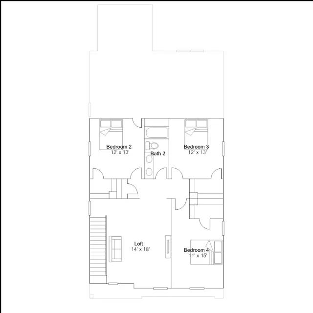
This new two-story home provides space for the whole family to thrive. The first floor features an open design among the kitchen, dining room and family room, which provides sliding-glass doors to the patio. The owners suite is tucked in a back corner of the home for maximum privacy. Upstairs are a versatile loft and three secondary bedrooms, which all have walk-in closets.