





























































































































Get additional information including price lists and floor plans.
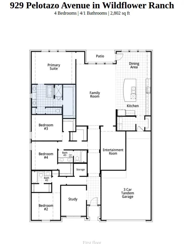
The Canterbury is a spacious one-story home that offers 2,747 square feet of well-designed living space, perfect for modern family life. The entrance opens into a welcoming foyer, leading to a study and secondary bedroom, which features a private bath. The heart of the home features an open-concept kitchen with a large island, seamlessly connecting to the dining area and family room, which opens onto a patio for outdoor enjoyment. The primary suite provides a luxurious retreat with a private bath. Bedrooms Three and Four are located nearby, sharing access to an additional bath. An entertainment room adds versatility, ideal for relaxation or gatherings. The three-car tandem garage offers ample storage and convenient access to the home, making this layout both functional and inviting.
Stay informed with Livabl updates on new community details and available inventory.