

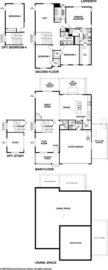
The main floor of the beautiful Lapis plan offers versatile flex space, an inviting great room and an open dining room that flows into a corner kitchen with a center island and walk-in pantry. Upstairs, enjoy a large loft, a convenient laundry and a luxurious owner's suite. Personalize this plan with a cozy fireplace, a private study and an additional bedroom!
Stay informed with Livabl updates on new community details and available inventory.