hero-image-0
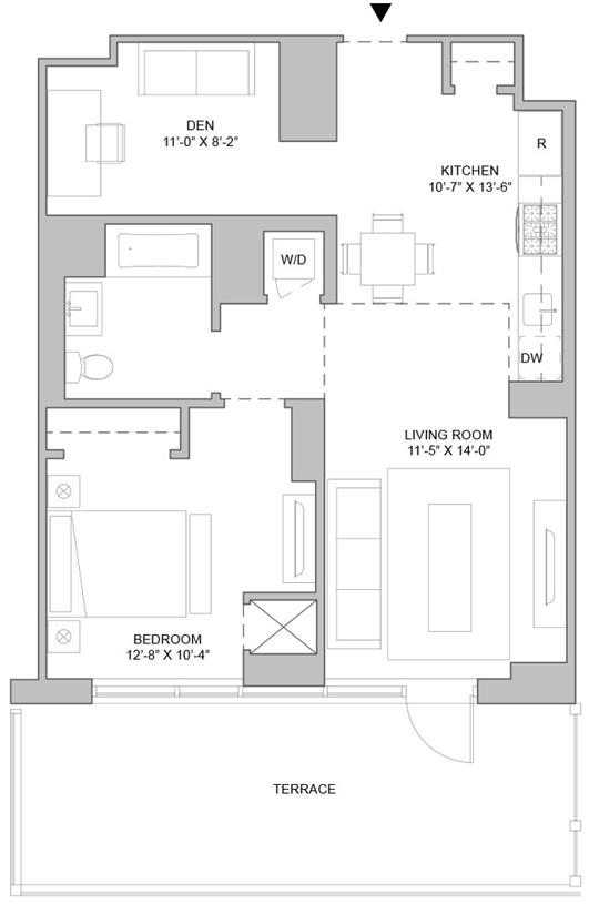
10 Provost Street at Provost S...
Sold
Sold
1
1
781
Unit 806 details
unit-banner-image
unit-banner-image
unit-banner-image
Unit 806 is now sold.
Check out available nearby condos below.