


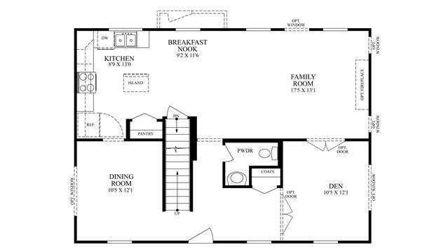
Meet The Waterloo, a two-story home design offering four bedrooms and two bathrooms.As you enter the foyer, the formal living room is on your right. The separate dining room leads into the spacious eat-in kitchen with optional gourmet island. The kitchen flows into the family room, with an optional gas fireplace and additional windows on the side wall. The laundry room and all bedrooms, including the masters suite, can be found on the second floor of the home.Stop by one of our communities today to personalize this design for your unique lifestyle.