hero-image-0
hero-image-1
hero-image-2

1378 Memorial Drive

Woodlands at Warwick
Sold
Sold
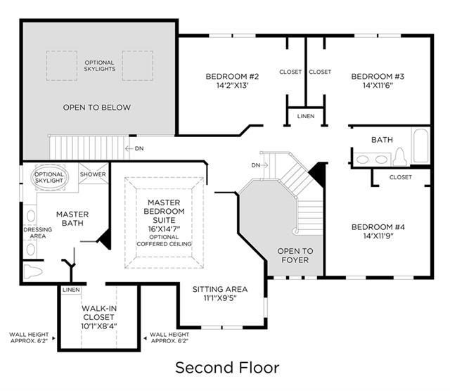
4
3
1
3,391
1378 Memorial Drive details
1378 Memorial Drive is now sold.
Check out available communities below.