
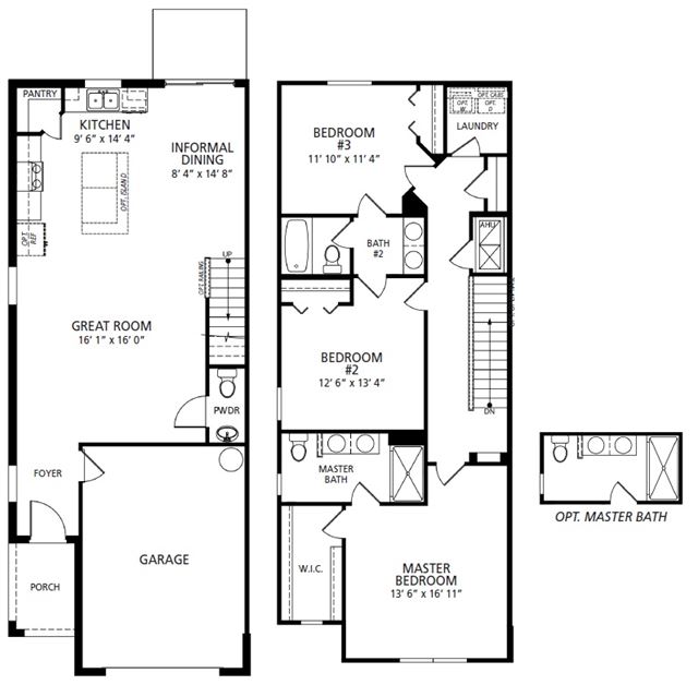
The St. Augustine is designed for all sorts of lifestyle needs.  Its compact design and efficient use of spaces make the home feel like the space a single family home would provide.  This efficient home doesnt compromise the function and flexibility home buyers are looking for.  Two different elevations are available to meet everyones needs. The exterior unit elevation offers a 1 car garage, foyer and great room concept. The family room is located in the center heart of the home. The large kitchen is open to both the family room and dining area that offers a sliding glass door to the rear patio. The first floor also features a foyer and powder room. Upstairs there is a large master suite with walk-in closet, two ancillary bedrooms with a Jack-and-Jill bath and laundry room. The interior unit elevation offers a full size garage, a large open great r...