































Get additional information including price lists and floor plans.

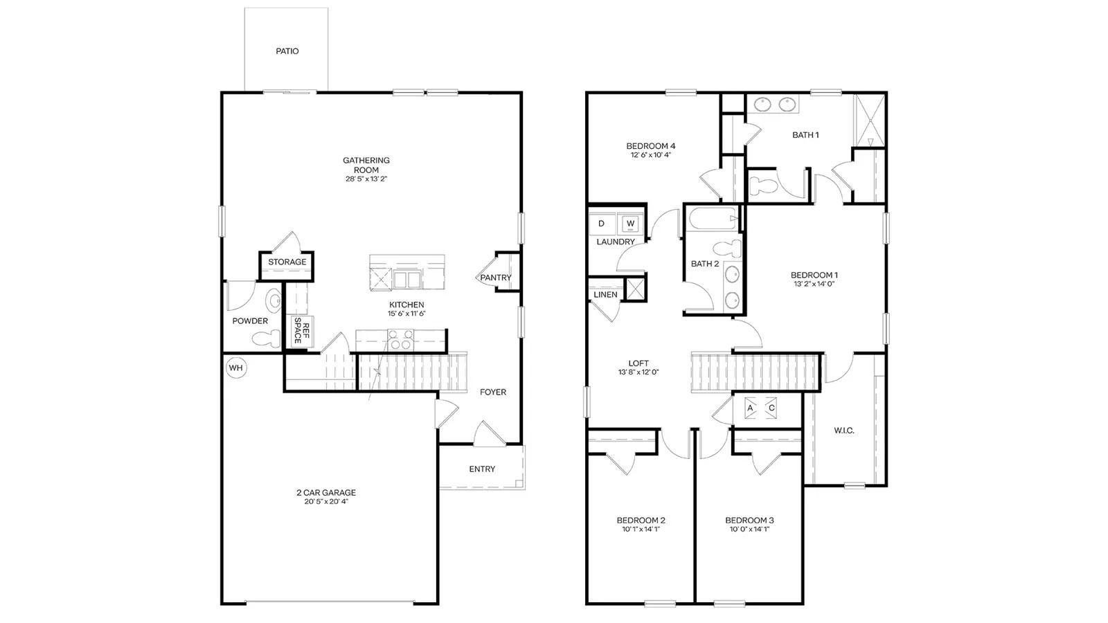
Introducing the Elston by D.R. Horton a spacious two-story home offering 2,160 square feet of thoughtfully designed living space. With 4 bedrooms, 2,5 bathrooms, and a 2-car garage, this versatile floor plan is perfect for large families or multigenerational households who need room to grow while maintaining comfort and privacy. The heart of the home is the open-concept kitchen, featuring beautiful quartz countertops, abundant prep space, and a large center island that overlooks the gathering room. Whether youre hosting friends or enjoying a busy weeknight dinner, this layout keeps everyone connected. The area has multiple windows which make the space have plenty of natural light. Upstairs, the spacious owners suite offers a relaxing retreat with dual vanities topped with quartz countertops, a large walk-in closet, and plenty of natural light. Three addition...
Stay informed with Livabl updates on new community details and available inventory.