



































































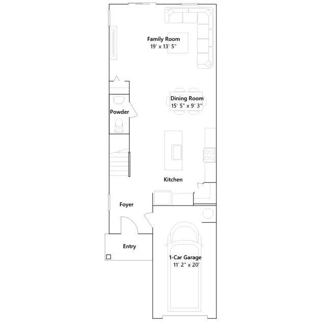
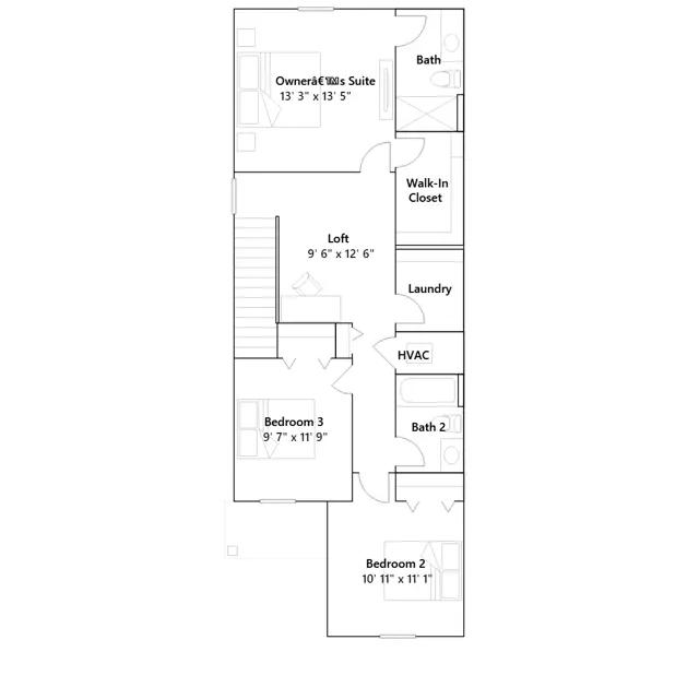
This new home showcases two levels of gracious living and entertainment space. The first floor features an open-concept layout shared among a modern kitchen with a center island, a dining room to enjoy everyday meals and a sprawling family room to host gatherings. Residing upstairs is a versatile loft framed by two secondary bedrooms and a serene owners suite, complete with a bathroom and walk-in closet.
Stay informed with Livabl updates on new community details and available inventory.