




















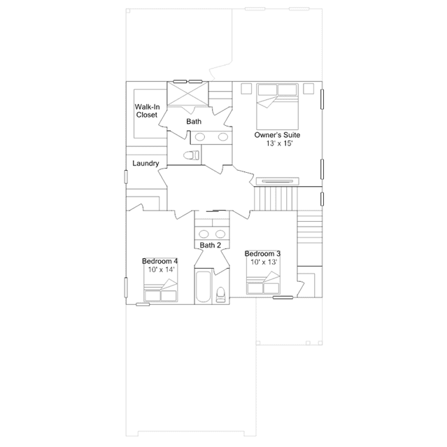
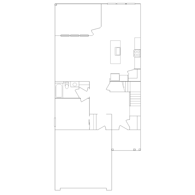
This two-story home is the largest plan in the collection. On the first floor is an open kitchen, dining room and living room with access to the outdoor entertainment area, along with a comfortable bedroom ideal for overnight guests. Upstairs is the luxe owners suite and two more bedrooms. Completing the home is a versatile two-bay garage for storage space.