

















































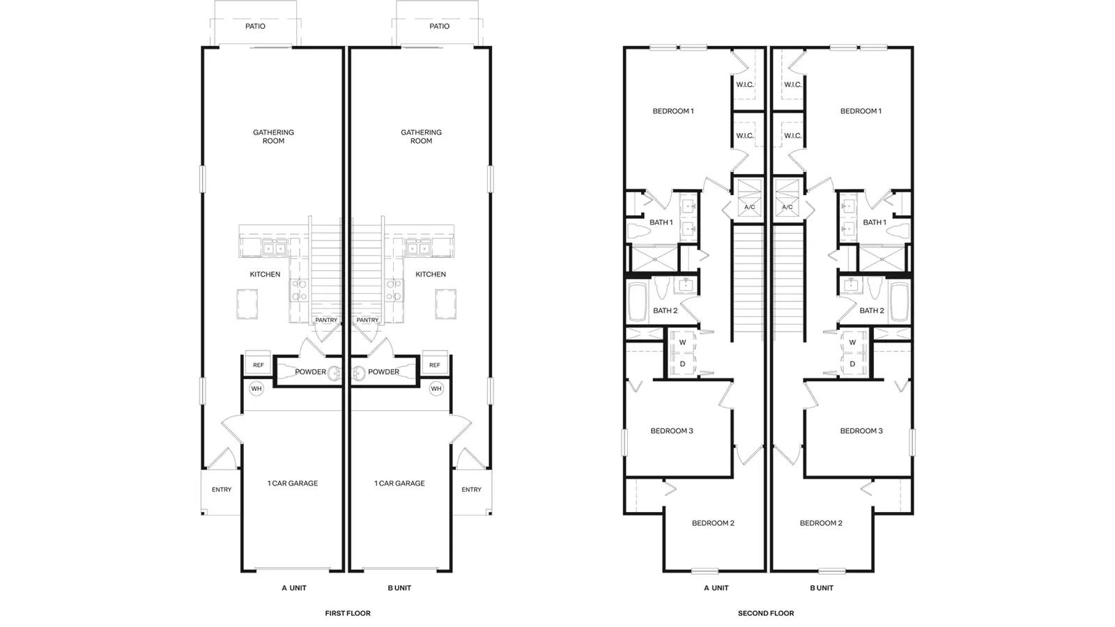
This beautifully designed new construction villa called the Carson by D.R. Horton offering 1,492 square feet of low-maintenance living. This 3 bedroom, 2.5 bath home with a 1 car garage delivers modern style, smart functionality, and comfortable two-story living. The open-concept main floor is perfect for everyday life and entertaining. A spacious kitchen anchors the home, featuring ample cabinetry and counter space, and flows seamlessly into the gathering room to create a bright, connected living area. A convenient half bath downstairs adds extra functionality for guests. Upstairs, all three bedrooms are thoughtfully positioned for privacy. The owners suite includes a private en-suite bath and generous closet space. Two additional bedrooms share a full bath, making this layout ideal for families, guests, or a home office. With its efficient floor plan, modern...
Stay informed with Livabl updates on new community details and available inventory.