











































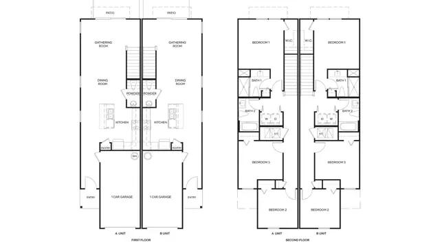
Step into the Greyson, a beautifully designed villa that maximizes space and comfort. With approximately 1,395 square feet, this three-bedroom, 2.5-bathroom home offers the perfect blend of style and functionality. The open-concept layout creates a seamless flow between the spacious kitchen, dining area, and gathering roomideal for entertaining family and friends. The large kitchen bar serves as the heart of the home, making meal prep both easy and enjoyable. Abundant natural light from sliding doors brightens the entire space, creating a warm and inviting atmosphere. Upstairs, the primary suite is a true retreat, featuring a spacious bathroom, a vanity, and a large walk-in closet. Conveniently located upstairs laundry adds to the homes practicality. The Greyson isnt just a homeits a smart investment. With energy-efficient features and thoughtful design, this ...
Stay informed with Livabl updates on new community details and available inventory.