


















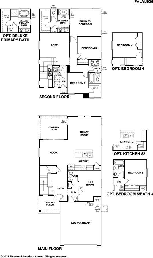
The Palm features two stories of smartly designed living space. On the main floor, an inviting kitchen is flanked by a great room and a dining nook-offering access to a relaxing covered patio. A mudroom provides a convenient entry point from the garage. This home will be built with a flex room or an extra bedroom. Upstairs, a generous primary suite with a private bath and walk-in closet. The second floor will be built with either a loft or an extra bedroom. Designer curated finishes included!