hero-image-0
hero-image-1
hero-image-2
hero-image-3
hero-image-4

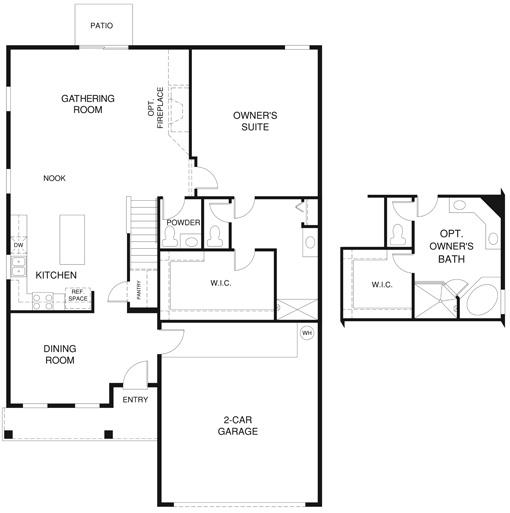
Monterey Plan

By

D.R. Horton

   |   

Blue Lake Estates

Blue Lake Estates
Sold
Sold
4
2
1
From 2,900
unit-banner-imageunit-banner-imageunit-banner-image
Monterey Plan details
Monterey Plan is now sold.
Check out available nearby plans below.