1924 Prudential Dr
Toll Brothers at RiversEdge
Southbank, Jacksonville
5670 COPPERS EDGE LANE
Irongate Villas
Biltmore, Jacksonville
1928 Prudential Dr
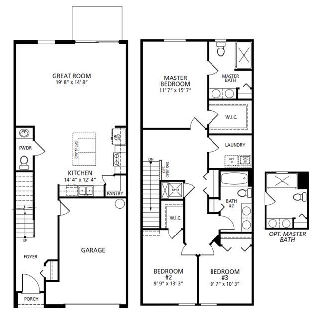
5604 COPPERS EDGE LANE
117 Domenica Drive
Villages at Moorestown
San Marco, Jacksonville
1872 Normandy Pines Lane
Normandy Pines
Normandy Estates, Jacksonville
1874 Normandy Pines Lane
33 Vincent Way