





















































































Get additional information including price lists and floor plans.
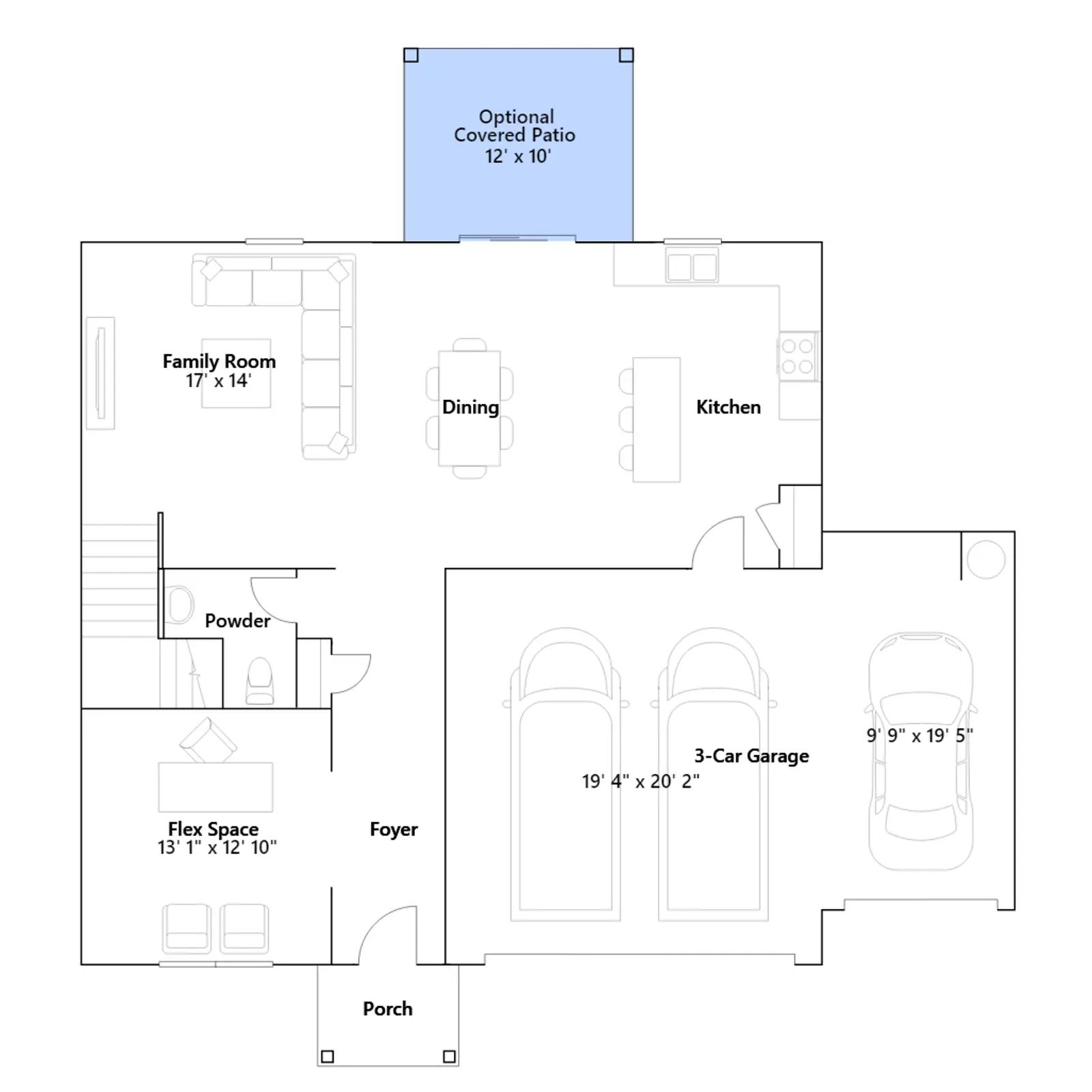
The first floor of this two-story home shares an open layout between the kitchen, dining area and family room for easy entertaining, along with a flex space that can function as a home office, depending on the homeowner’s needs. Upstairs are three secondary bedrooms surrounding a versatile loft, one with a private bathroom, as well as the luxe owner's suite with an en-suite bathroom and spacious walk-in closet. Prices and features may vary and are subject to change. Photos are for illustrative purposes only. Source: Lennar
Stay informed with Livabl updates on new community details and available inventory.