















































Get additional information including price lists and floor plans.
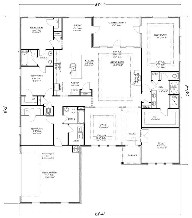
Welcome to the Mila floorplan in Palm Pointe in Ocean Springs, Mississippi. With over 2,900 square feet of thoughtfully designed space, this stunning home features four bedrooms, three bathrooms, and a spacious two-car garage, offering comfort and style for modern living. Upon entering, youre welcomed by a formal dining room and a private study, perfect for entertaining or working from home. Down the hallway, three bedrooms share two full bathrooms, with easy access to the conveniently located laundry room. The great room lives up to its name with an impressive open-concept design. The kitchen features a large quartz countertop island with additional seating, elegant shaker-style cabinetry, and stainless steel appliances for a sleek, modern look. The adjacent breakfast area opens to a covered porch, providing an inviting space for outdoor relaxation or dining...
Stay informed with Livabl updates on new community details and available inventory.