




























Images coming soon
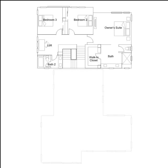
This new three-story home boasts a modern and spacious layout with a flexible open-concept floorplan and bedroom on the second floor. A second-level covered deck provides a convenient spot for outdoor leisure. Three additional bedrooms surround a versatile loft on the third floor, including the luxe owners suite. A two-bay garage on the first floor is easily accessible from the foyer.