


















































Images coming soon
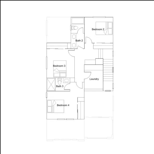
This three-story home features a spacious layout with a versatile bonus room on the first floor. The luxurious owners suite can be found on the second floor along with an inviting open-concept floorplan with access to a covered deck, perfect for seamless entertaining. Three additional bedrooms are located on the third floor.