


































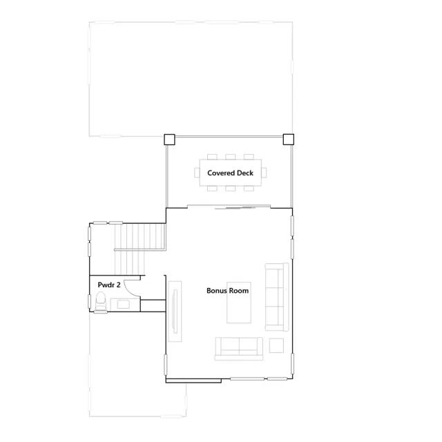
With desirable features including a third-floor bonus room and prime first-floor bedroom, this new three-story home boasts a modern and spacious layout catering to various lifestyles and routines. The first floor is host to an inviting open-concept floorplan and secondary bedroom. Three additional secondary bedrooms and the luxurious owners suite make up the second level. The third-floor bonus room boasts access to a covered deck for seamless entertaining.