130 Paddlewheel
The Sequoias at The Meadows
Pacific Commercentre, Lake Forest
468 Ridgecrest
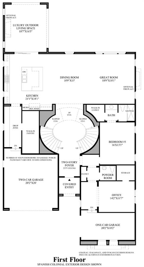
Skyline by Toll Brothers in Summit at Orchard Hills
Orchard Hills, Irvine
120 Chapman
110 Chapman
200 Paddlewheel
101 Red Oak
190 Paddlewheel
205 Briar Moon
Aurora at Luna Park
Irvine Spectrum, Irvine