





















































































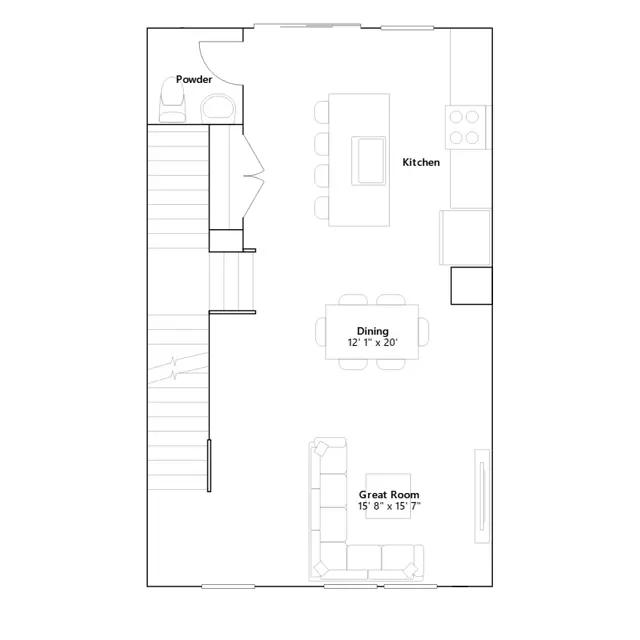
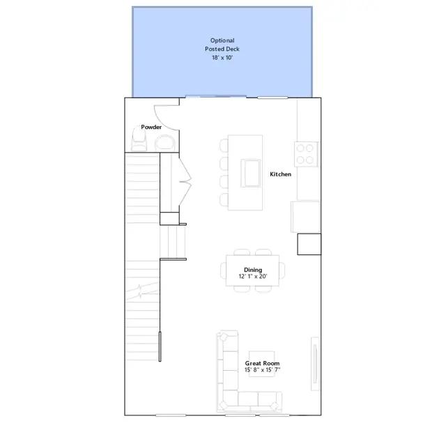
The first floor of this new three-story townhome features a versatile recreation room for endless possibilities. Upstairs is the open-plan main living space, which includes the spacious Great Room, a cozy dining area and a well-equipped kitchen fit for modern times. Two secondary bedrooms and the private owners suite rests on the third floor to provide peaceful accommodations.
Stay informed with Livabl updates on new community details and available inventory.