

















































Get additional information including price lists and floor plans.
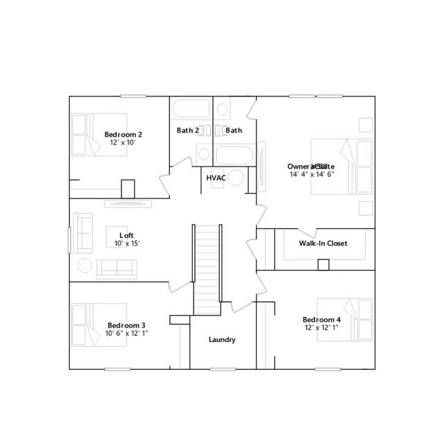
This new two-story home is optimized for gracious living. Upon entry is a study perfect for remote work, while a convenient open-plan layout connecting the kitchen, dining room and Great Room completes the first floor. The second floor caters to a versatile loft for shared living space, three secondary bedrooms and a serene owners suite with an attached bathroom.
Stay informed with Livabl updates on new community details and available inventory.