hero-image-0
hero-image-1

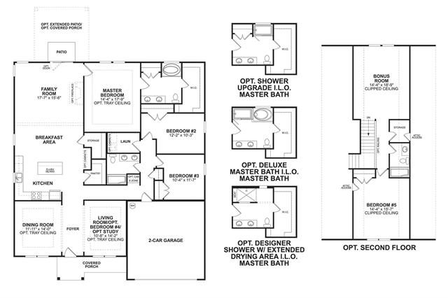
2708 Manor Stone Way

Heritage - Traditions
Sold
Sold
4
3
2,890
2708 Manor Stone Way details
2708 Manor Stone Way is now sold.
Check out available nearby homes below.