

























































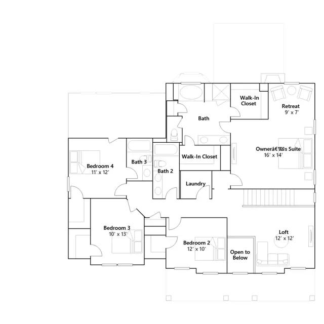
This new two-story home design combines elegance and comfort. The first floor features a family room with a fireplace, a nook with a door to the patio, a kitchen with a center island, a formal living and dining room with great style and a bedroom suite with secluded privacy. The second floor hosts a versatile loft, three secondary bedrooms with walk-in closets and an owners suite with a sitting area and two walk-in closets.