























Get additional information including price lists and floor plans.
Images coming soon
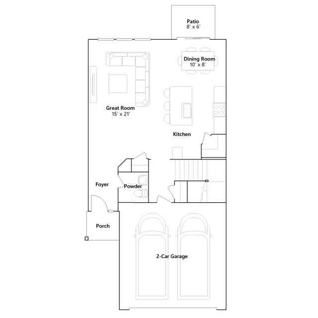
This new two-story townhome is the largest design in the Traditional collection. The first floor features an open-concept floorplan among the Great Room, dining room and kitchen and a patio for outdoor living. Upstairs are two secondary bedrooms and an owners suite with a private bathroom and spacious walk-in closet.
Stay informed with Livabl updates on new community details and available inventory.