hero-image-0
hero-image-1

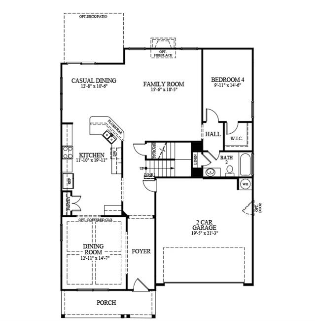
Hilton Plan

By

D.R. Horton

   |   

Arbormere

Arbormere
Sold
Sold
4
4
From 3,098
unit-banner-imageunit-banner-imageunit-banner-image
Hilton Plan details
Hilton Plan is now sold.
Check out available nearby plans below.