

































Empire Communities nabs five trophies at Houston’s Best PRISM Awards
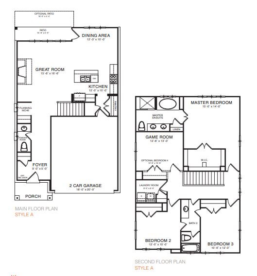
Prolific Canadian homebuilder Empire Communities entered the Texas market two short years ago and is now winning awards for their efforts.

Award-winning Canadian developer Empire Communities sets its sights on Texas
Empire Communities has built more than 12,000 beautiful new homes across Southwestern Ontario and the Greater Toronto Area — with many more on the way in the Texas market alone.